The design of a single-family house intended for a four-member family is situated on steep terrain, which required the construction of retaining walls to ensure the stability and safety of the building. The architectural plan carefully takes into account the topography of the terrain, allowing for optimal use of space and the creation of a dynamic and functional living environment.
On the northwest side of the house, where the courtyard and entrance are located, the design is more closed, ensuring privacy and a sense of security for the family. In contrast, the southwest side of the house features large glass surfaces that provide stunning panoramic views and optimal use of natural light throughout the day.
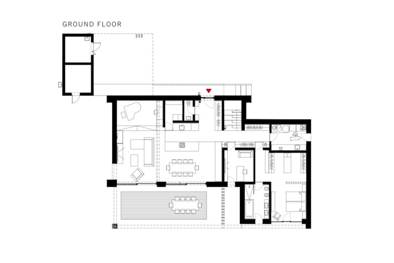
The ground floor of the house includes living and service areas, such as a bright living room, a functional kitchen with an island and pantry, an office, a restroom, and the master bedroom with a walk-in closet and an en-suite bathroom. The rooms on the ground floor are bathed in natural light thanks to large triangular glazing in the gable, creating a sense of spaciousness and airiness. The living areas are designed for socializing, with special corners for a piano and bar accessible through elegant pocket doors. The kitchen island is the heart of the home, facilitating food preparation and socializing, while a convenient hidden passage to the pantry ensures a tidy space.
The house extends to a magnificent covered terrace, equipped with an outdoor kitchen and seating area, making it an ideal space for entertaining and relaxing in contact with nature throughout the year.
Upstairs, there are two children's rooms and a bathroom. Additionally, a gallery is designed to serve as a library and reading nook, offering a beautiful view of the lower living area and the music stage. This gallery space provides a peaceful environment for relaxation and enjoying the view, adding aesthetic value to the house.








